今天的屋主,是一位花藝創作者,這是她人生中第一套房,所以期望值很高。
經過多番尋覓,屋主很喜歡光植境設計的作品,喜歡他們的設計中展現的自由開闊感,于是雙方開啟了一段愉快的合作。

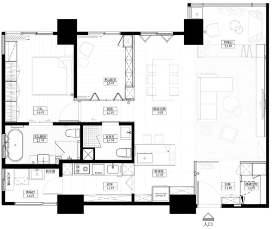
整體設計:
屋主喜歡復古元素、材質混搭,希望能在自己的家里呈現多元的創新。
在滿足客戶需求的同時,設計師更在意「居者、自然、空間」三者之間的和諧關系。于是在設計中納入自然元素,營造愉悅氛圍,并且透過細節與軟裝以及型塑等。打造獨特的風格美學。
接下來我們具體來看~

玄關
一進門就讓人眼前一亮!格狀玻璃鐵框屏風,條凳上的花器與藏石,壁燈下吊掛的花藝,亦境亦景。
微水泥墻面,與地面仿水泥瓷磚渾然一體。

鞋柜+儲藏間
門的右側沿墻面規劃木質與竹編交錯的L型鞋柜和儲藏間。儲藏間滿足屋主需求,用做衣帽間和花藝素材、花器以及教學用品的收納。

客廳
人字拼木地板劃成客廳區,帶有個性的復古混搭,在此極致展現。

L型微水泥電視墻與灰藍色墻面,看上去簡約素雅,搭配實木層柜,與餐桌相呼應。

棕色皮質沙發提升空間暖度,兩個石紋臺面銜接金屬桌腳的茶幾,低調的玫瑰金彰顯一種輕奢風。

陽臺
屋主喜歡渡假,就在家開辟一處南洋風情。墻面延續電視墻材質,用植物墻做分隔,在鐵框玻璃折疊門的包覆下,讓人仿佛置身戶外。


坐在優雅的藤編椅上,遠眺窗外山景,日光灑落在身上、悠然自在于心里。


夜晚或特殊節日,點亮飾燈,怡情小酌,愜意自在。

長木紋餐桌,不僅可招待親友,進行花藝創作及教學是再好不過的。

為消弭整面墻帶來的厚重感,在鄰近走廊的地方做了開放展示柜,目光透過它達到多功能室,視覺上輕盈了許多。

廚房
中島與餐桌視角平齊,仿鑄鐵金屬臺面,搭配懸掛層架和吊燈,復古韻味十足。
側方墻面上做北歐風黑板墻,可做教學講解、可揮灑藝術創作、也可吸附特色卡片等,隨心所欲。

廚房熱炒區以長虹玻璃門分隔,讓喜愛料理的屋主能夠盡情施展手藝。

多功能房
此處作為彈性空間,可作為書房和客房。開放式層柜利落大氣,與對面墻面形成反差,展現出人文意境。


主臥
隨處可見的綠植和花藝作品,在木質衣柜的襯托下,定格成景。

梳妝臺和區分主衛都做推拉門設計,柔化了空間表情。

區別于公共區域,臥室灰綠色墻面搭配頗具造型感的床頭燈,在夜晚帶來愜意和溫馨感。

衛生間
屋主想要凈白的衛浴空間,所以干區沿用全屋微水泥墻面,濕區用仿石紋瓷磚,地面拼貼深灰石紋瓷磚,營造出層次感。


每一個角落都是獨特的風景,每一眼看到的都是唯美和意境,生活在這樣的家里,日光煦煦、微風輕拂,怎是一個“美”字了得!