今天分享的是一套建筑面積126平米的美式風四居室案例,房子的布局緊湊而又實用,設計師通過優雅而又精致的軟裝來打造這樣一個簡約美式風的房子,讓人感受到輕松、舒適的居住氛圍。

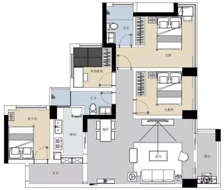
平面布置圖

入戶的玄關走廊比較窄,所以利用墻內的空間做了個嵌入式的鞋柜,另一側可以擺放換鞋凳,鞋柜的底部和中間留空后使用也方便一些。

走過玄關之后就到了客餐廳空間,把客餐廳的吊頂和地面做了相同的設計,整體感更強。電視背景墻處用大理石和石膏線邊框做裝飾,非常的高大上。

沙發背景墻做了比較經典的現代美式風設計,簡潔的石膏線裝飾線條和掛畫的結合,搭配米色的布藝沙發、藍色的單椅、地毯和窗簾,帶來優雅精致的感覺。

餐廳處的設計感主要體現在這個背景墻上,用鏡面作為裝飾,還做了菱形的造型,搭配簡約款式的餐桌椅,更有現代風的感覺。

廚房的面積不大,但也做了U字型的櫥柜布局,灰色的地磚搭配白色的櫥柜,打造出一個簡約舒適的烹飪空間。

主臥室的床頭背景墻上鋪貼了灰色系的墻布,墻布、床品和窗簾都是帶有花紋的,更有美式風的感覺,靠窗處還用梳妝臺代替床頭柜,更加實用。

兒童房的床頭背景墻同樣也是鋪貼了墻布,兒童房的軟裝和家具會更加可愛和卡通一些,更多的是為了符合孩子的喜好。

老人房的設計會更為素雅一些,床頭靠背用護墻板來代替,在色彩才也是選擇更更為素雅的搭配,床尾的落地窗給老人房帶來足夠的采光。

衛生間做了干濕分離的設計,墻地磚鋪貼了大理石瓷磚,陽光透過大大的窗戶和百葉簾之后,給衛生間帶來更為夢幻的感覺。
查看更多熱門資訊