對于眾多年輕人來說,給新房裝修,除了要實用,最重要的就是要時尚了。而本期案例中的90后屋主夫婦,應該就將新家的時尚感,給表現的淋漓盡致。全屋采用了大量的明亮色來做點綴裝飾,一進門就給人一種非常搶眼的感覺,完美將新房打造成了符合他們對于時尚的定義。同時,也將當下流行的輕裝修、重裝飾理念給融入到新家當中,看起來相當精致。
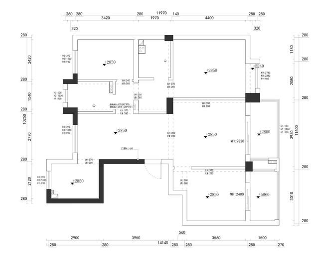
平面結構圖

新房的建筑面積有125㎡,戶型相當的不錯,三室向陽,采光非常的不錯。不過在局部空間上,卻有些不太合理。比如廚房的空間太小,動線與餐廳無法做到連接。再比如主臥的空間不太工整等。因此,在方案設計上,也主要是針對了這兩個問題,進行了改動。
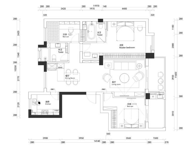
平面方案圖

由于原廚房空間結構的限制,基本上是無法做到二次改動了。所以就將冰箱及設備柜給移到餐廳,緩解廚房收納空間不足的壓力。主臥室的墻體則做了移位調整,來保證房間的工整性,以及解決儲物空間的問題。兩個衛生間都正常保留,方便父母過來后居住使用。具體通過下面實景來慢慢分析。
客廳

從客廳整體的色調以及造型上來看,是以時下比較流行的INS風來定位的。大面積的紅色,不僅代表著熱情、張揚、也代表著溫暖。同時,選擇藍色的沙發,也對整個空間色調起到了很好的平衡作用,讓熱情與清冷在自然間碰撞,營造出一種都市的快感及時尚。

電視墻原本就是一塊內凹的空間,左邊做上儲物柜,很好的增加了收納空間。而給柜門做上白色飾面,并搭配上凹凸線條后,則與右邊的臥室門起到了很好的對稱,并且也使臥室門達到了隱形的效果。
不過整個電視墻最吸引人的,應該還是中間的電視柜了,通體絳紅色的飾面,與橙紅色的背景墻既形成了反差,也顯得足夠精致。

沙發背景依然選擇了石膏線來裝飾,既表現出了層次,也與電視墻的線條形成了呼應。而通過金色家具元素的點綴,也不失華麗感,非常漂亮。
餐廳

餐廳在軟裝色調的選擇上,依然以高明度色為主,黑白金色的餐桌,藍金及紅金色的餐椅,以及金色的吊燈,無不體現出了精致時尚感。廚房門洞這塊,由于結構不可改,所以采用拱形的方式來處理,也表現出了不一樣的特點。

從廚房看向餐廳,冰箱及微波爐等電器,都內嵌在了高柜當中,很好的緩解了廚房收納空間小的問題。而旁邊的島臺與餐桌擺在一起,也在無形中增加了餐桌的使用空間。
廚房

來到廚房內部,整體色調以藍調為主,L形的櫥柜收納空間雖然有限,但也能滿足最基本的需求。水磨飾面的墻磚以及龜裂飾面的地磚,則再一次表現出了時尚感。
主臥

主臥室的設計表現以及實用性都做的很不錯,比如床頭局部深藍色的線條背景,既拉伸了整個房的間層高,也使房間看起來更加精致。而飄窗旁邊的柜子,則是借助空調設備平臺改造的,雖說空間有限,但用來收納一些雜物,還是挺不錯的。床頭對面,則是一排衣柜,儲物空間非常強大。

主臥室門背后,由于原本就有一塊內凹空間,所以就衛生間的臺盆柜,給放到了這里,并且旁邊的空間,還能滿足女主梳妝的需求。
主衛生間

來到主衛內部,其實在擺下一個浴缸之后,空間就非常小了。不過也好在不用考慮臺盆位置了,所以剩余的活動空間也還不錯。而在墻磚的處理上,則將復古與現代給完美結合了,看起來很有質感。
外衛生間

外衛生間的布局及色彩搭配,雖說和其它房間對比略顯簡單了,但在實用性上卻是沒話說的。比如淋浴間的地面回形處理,就很好的解決了排水問題。再比如馬桶旁邊的柱子,也采用雙面壁龕設計,用來收納一些小東西。當然,還有一個梯子擺件配置,也解決了毛巾及臟衣收納作用。
次臥室

全房最簡單的應該就是次臥設計了,不過相對來說,也是比較正常的情況。畢竟暫時用不上,所以也不需要將其裝修的多么精致。